* ブログ内の画像で創作関連のイラストの大きな画像をご覧になりたい方は、°F<BL創作漫画サイト>でご覧になれます。二次創作に関しては、Pixivにて公開。 忍者ブログ

°F PIPEDREAM

*注:オリジナルBL系イラスト(笑)練習ブログです。  ヒマを見つけて描き散らかしてます。自分を励ます目的だったり、業務連絡だったりでちまちま更新。   当ブログ内の画像で創作関連のイラストの大きな画像をご覧になりたい方は、°F<BL創作漫画サイト>でご覧になれます。二次創作は、pixivにて公開。

[PR]

×

[PR]上記の広告は3ヶ月以上新規記事投稿のないブログに表示されています。新しい記事を書く事で広告が消えます。

コメント

現在、新しいコメントを受け付けない設定になっています。

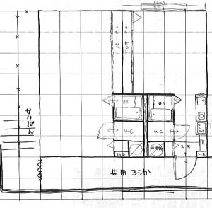
間取り図。

漫画を描き進む内、当初はあまり気にしていなかったキャラクターの位置が気になりだした。
コマが横長だから上半身しか描いてないけど、これは、座って喋ってるのか、立ってるのか、
部屋の入り口にいるのか、右に寝てるのか、床なのか床に座ってるのか。
入り口の方角、窓の位置。光源は何処なのか。
その辺が長~い時間をかけて(およそ一週間で1Pとか1コマペース)描き進む内、動いてもいないのに位置が入れ替わってたり、
寝入る前は床で、朝にはベッドの上に寝ていたり。
右左逆転していたり・・・とかなり残念なことになっているのに気づいた。
だけど、描いている時もそれは全く考えていなかった訳ではなくて、なのに、時間の経過と共に有耶無耶に。
とりあえず、一番描くのが多いシーン<キャラの部屋>の位置関係だけは、はっきりさせながら描いていきたい。
と思い、過去の原稿を見返しながら、なんとか辻褄の合う部屋の間取りをと考え始めたら、
貴重な休暇の一日を<ワンルームマンションの間取り模索>に費やしてしまっていたorz

k_mdr_01.JPG前提
・一人暮らし用ワンルームマンション。でも男2人で同居可能な広さ。
・8畳弱。
・風呂、トイレが別。
・小さなキッチン
・玄関口にデッドスペースがある。
・窓が一つ
よくありそうな大阪のアパート。

 

 

というわけで、学生時分に行った友達の部屋を思い出しつつ(当方賃貸住居未経験者)
うっすらと知ってる健基法に基づいて、
個人が生きていくのに必須のものは全て搭載した適度に狭い(ここポイント!)間取りを!
と、試行錯誤。

単に絵が描きたいだけなのに、どうして私、こんな貴重な休日にメーターボックスと給湯器の位置で悩んでるんだろう?
とあきれつつなんとか完成。
本当は隣の部屋と鏡面状態にしたかったけど、無理。諦めた。

・これが舞台となる『きょんちゃんち』


考えてる内は夢中で気付かなかったんだけど、そもそも<もう描いちゃったのは無視して>
ネットで不動産検索して、近そうなのを見つければ?ってことに完成してから気付いたwww
もっと早く気付こうよ。
なんつーか毎回このパターンww
 

にほんブログ村 BL・GL・TLブログ BLオリジナルイラストへ





PR

コメント

お名前
タイトル
文字色
メールアドレス
URL
コメント
パスワード Vodafone絵文字 i-mode絵文字 Ezweb絵文字

プロフィール

HN:
これっと
性別:
女性
趣味:
お菓子作りとエレマンドリン(笑)を少々
自己紹介:
音楽(主に洋楽だけど広く浅く)と歴史全般、ゾンビとラテン文学、アニメが好き。
歴史オタクと軍装オタ、ミリオタ、建築構造物オタを兼任する四重苦腐女子。
関西熊本訛りが混在するアレレな日本語と、インド訛りの片言英語と、ほぼ喃語のスペイン語を繰出すセミリンガルww
自分を褒めることにかけては天才。

元来の遅筆と虚弱体質につき、サイトの更新は稀w

カレンダー

11 2025/12 01
S M T W T F S
1 2 3 4 5 6
7 8 9 10 11 12 13
14 15 16 17 18 19 20
21 22 23 24 25 26 27
28 29 30 31

ブログ内検索

バーコード

プロフィール

HN:
これっと
性別:
女性
趣味:
お菓子作りとエレマンドリン(笑)を少々
自己紹介:
音楽(主に洋楽だけど広く浅く)と歴史全般、ゾンビとラテン文学、アニメが好き。
歴史オタクと軍装オタ、ミリオタ、建築構造物オタを兼任する四重苦腐女子。
関西熊本訛りが混在するアレレな日本語と、インド訛りの片言英語と、ほぼ喃語のスペイン語を繰出すセミリンガルww
自分を褒めることにかけては天才。

元来の遅筆と虚弱体質につき、サイトの更新は稀w

カレンダー

11 2025/12 01
S M T W T F S
1 2 3 4 5 6
7 8 9 10 11 12 13
14 15 16 17 18 19 20
21 22 23 24 25 26 27
28 29 30 31

バーコード

プロフィール

HN:
これっと
性別:
女性
趣味:
お菓子作りとエレマンドリン(笑)を少々
自己紹介:
音楽(主に洋楽だけど広く浅く)と歴史全般、ゾンビとラテン文学、アニメが好き。
歴史オタクと軍装オタ、ミリオタ、建築構造物オタを兼任する四重苦腐女子。
関西熊本訛りが混在するアレレな日本語と、インド訛りの片言英語と、ほぼ喃語のスペイン語を繰出すセミリンガルww
自分を褒めることにかけては天才。

元来の遅筆と虚弱体質につき、サイトの更新は稀w

バーコード

最新トラックバック